




Development Land in Laund Road for Sale - £175,000
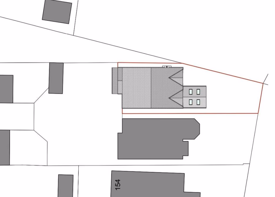
CALLING SELF BUILDERS & DEVELOPERS. Enjoying a prime location, ideal for your dream home? This plot of land, once the site of a detached house, now offers you the exciting opportunity to build a brand new property which was previously granted under application Number: 2021/62/92864/W. I...
Development Land in Laund Road for Sale - £175,000
Description
CALLING SELF BUILDERS & DEVELOPERS. Enjoying a prime location, ideal for your dream home? This plot of land, once the site of a detached house, now offers you the exciting opportunity to build a brand new property which was previously granted under application Number: 2021/62/92864/W. I...
Contact Agent
Smart Picks — Professionals Relevant to This Land
Based on this property's key features, here are the specialists you may want to consult as part of your due diligence: land agents, rural solicitors and rics surveyors.

Land Agents
Essential for navigating the land market, finding buyers, and securing the best price.

Rural Solicitors
Significant investment (£175K+) requires legal expertise for conveyancing, title checks, and transaction security.

RICS Surveyors
Prime or productive land requires professional valuation to ensure fair market value.
Location
Laund Road